BUSINESS
PROPERTY
OUTLINE
葛飾区柴又1丁目 1棟売アパート
一棟売マンション
【NEW】
価格 / 1億2,800万円(税込)
利回り / 4.17%
| 所在地 | 東京都葛飾区柴又1丁目 | ||
|---|---|---|---|
| 交通 | 京成本線「京成高砂」駅徒歩9分、京成金町線「柴又」駅徒歩6分 | ||
| 敷地面積 | 147.10㎡ | 土地権利 | 所有権 |
| 建物面積 | 116.34㎡ | 規模構造 | 鉄骨造2階建 |
| 築年月 | 2024年4月 | 都市計画 | 市街化区域 |
| 用途地域 | 第1種住居地域 | 建蔽率/容積率 | --- |
| 接道状況 | 西側公道約4.5m | その他 | 駐車場あり |
| 設備 | オートロック、浴室乾燥機etc | 特記事項 | --- |
| 取引様態 | 仲介 | ||
RECOMEND
POINT
<年間賃料想定> 金5,340,000円
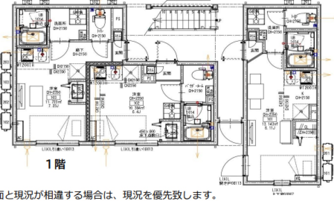
<総戸数>6戸
◆Point
1.『京成高砂』駅、『柴又』駅の2駅利用可!
2.駅徒歩10分圏内!
3.管理しやすい規模感!
※当ページ記載内容と現況が異なる場合は、現況優先と致します。
ーーーーーーーーーーーーーーーーーーーーーーーーーーーーーーーーーーーーー
その他、ご質問や資料請求をご希望のお客様は下記までお問合せください!
【問い合わせ先】株式会社TRUST・WAVE
TEL:045-211-4645 E-mail:info@t-wave1173.com
担当:すずきまで
ーーーーーーーーーーーーーーーーーーーーーーーーーーーーーーーーーーーーー


