BUSINESS
PROPERTY
OUTLINE
川崎市宮前区宮崎台 1棟売りビル
一棟売マンション
価格 / 2億9,000万円(税込)
| 所在地 | 神奈川県川崎市宮前区宮崎1丁目 | ||
|---|---|---|---|
| 交通 | 東急田園都市線「宮崎台」駅徒歩5分 | ||
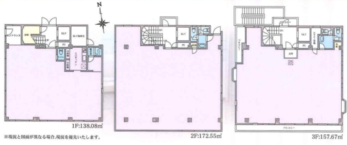
| 敷地面積 | 275.00㎡ | 土地権利 | 所有権 |
| 建物面積 | 468.30㎡ | 規模構造 | 鉄骨造陸屋根3階建 |
| 築年月 | 1991年3月 | 都市計画 | 市街化区域 |
| 用途地域 | 第一種中高層住居専用地域 | 建蔽率/容積率 | 60%、200% |
| 接道状況 | 西側公道約6.49m、南側私道約5.02m、北側私道約5.0m | その他 | 準防火地域、第2種高度地区 等 |
| 設備 | 検査済証有、境界確定済 | 特記事項 | *** |
| 取引様態 | 仲介 | ||
RECOMEND
POINT
<年間賃料想定> 現況空室です
<総戸数・間取> 1R×3戸
◆Point
①2024年8月バリューアップ工事実施済
②三方道路につき、視認性良好
③1棟の住戸をSOHO(住居兼事務所)向け物件として利用可
※当ページ記載内容と現況が異なる場合は、現況優先と致します。
ーーーーーーーーーーーーーーーーーーーーーーーーーーーーーーーーーーーーー
その他、ご質問や資料請求をご希望のお客様は下記までお問合せください!
【問い合わせ先】株式会社TRUST・WAVE
TEL:045-211-4645 E-mail:info@t-wave1173.com
担当:すずきまで
ーーーーーーーーーーーーーーーーーーーーーーーーーーーーーーーーーーーーー





